Sip 300
Ciputat, Tangerang Selatan
Rumah 1,5 lantai mezanine di Ciputat harga paling ekonomis se-Tangsel
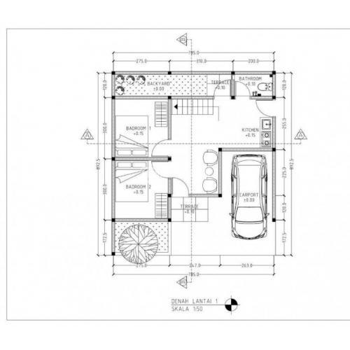
Spesifikasi rumah sbb:
Luas tanah 72 m2
Luas bangunan 55 m2
Kamar tidur 2
Kamar mandi 1
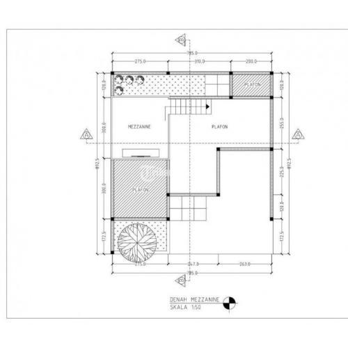
Ruang Mezzanine
Listrik 1300 watt
Carport
Torn air
Surat SHM
Akses Cluster 2 pintu
.
Selling Point:
Deket dengan berbagai macam fasilitas umum, masjid, sekolah RS, pasar Ciputat dll
Harga termurah dikelasnya
Lingkungan aman & nyaman
Semi cluster
Good Investment
. .
Bonus:
Free biaya-biaya (all in)
1 unit AC
1 unit Torn air
Mesin air
Akses Point:
5 menit fasilitas sarana masjid & sekolah
10 menit RS Buah hati & pasar Ciputat
10 menit ke stasiun Sudimara, Tol Bintaro & halte busway serta kampus UIN & UNPAM
20 menit tol BSD & Serpong - Cinere, MRT lb. Bulus
Harga :
Type 55/72 (550 jt)
Note:
Unit indent 3 bulan
Opsi pembayaran hanya cash keras (tdk bisa KPR)






Belum ada komentar. Jadilah yang pertama untuk memberikan komentar!